蝸輪式全焊接球閥采用固定球結構,球體的上、下軸上裝有軸承,操作扭矩小,這種結構的球體是固定的,受壓后不產生移動,設計有兩個密封圈提供足夠的預緊力保證密封,達到雙面強制密封,密封性能更可靠。球體的加工過程有先進的計算機檢測儀跟蹤檢測,以球體的加工精度高。由于閥體材料跟管道材質一樣,不會出現應力不均,也不會出現由于地震及車輛經過地面時而產生變形,其密封環本體采用含量20%C(碳素)的PTFE材料,保障完全無泄漏(0%)。****
設計規范:API 6D、ASMEB 16.34
壓力-溫度等級:ASME B16.34、API608
結構長度:ASME B16.10、GB12221
對焊端形式:ASME B16.25、ASME B31.4/31.8
檢驗與試驗:API 598、API 6D、GB13927
耐火試驗:API 607、API 6FA
閥門型號:Q361F
連接方式:焊接,對焊
壓力等級:Class 150~300Lb,PN1.6/2.5MPa
產品規格:DN600~1200mm
產品材質:WCB,A105,F11,F22,F304,F316,CF8,CF8M,WCC或根據客戶要求選
適用溫度:-29℃≤t≤200 ℃
適用介質:水,空氣,油和其它不與碳鋼發生化學反應的流體等
驅動方式:蝸輪式
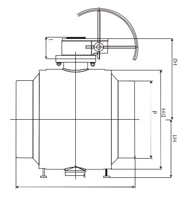
| DN(mm) | 公稱直徑 | DH |
d A/B |
t | L | H1 | H2 | 重量(kg) |
|
600 |
600 |
1016 |
610/630 |
22 |
1143 |
650 |
860 |
2000 |
|
700 |
700 |
1130 |
7118720 |
24 |
1346 |
705 |
915 |
3100 |
|
800 |
800 |
1245 |
813/820 |
28 |
1524 |
770 |
1000 |
4700 |
|
900 |
900 |
1415 |
914/920 |
30 |
1727 |
855 |
1110 |
5700 |
|
1000 |
980 |
1555 |
1016/1020 |
32 |
1840 |
925 |
1180 |
6600 |
|
1100 |
1080 |
1700 |
1124 |
36 |
2100 |
995 |
1300 |
8100 |
|
1200 |
1166 |
1860 |
1219/1220 |
40 |
2100 |
1075 |
1430 |
11000 |