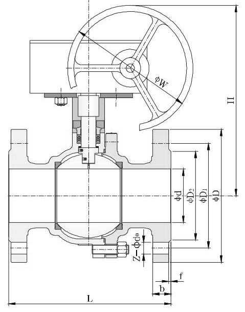
主要外形和連接尺寸

|
壓力級 |
口 徑 |
尺 寸(mm) |
重 量 (kg) |
||||||||||||||
|
DN |
NPS |
L |
d |
D |
D1 |
D2 |
b |
f |
Z-φd0 |
W |
H |
||||||
|
RF |
RJ |
手動 |
蝸輪 |
手動 |
蝸輪 |
手動 |
蝸輪 |
||||||||||
|
Class 150 |
15 |
½ |
108 |
119 |
14 |
89 |
60.5 |
35 |
11 .5 |
1 .6 |
4 -15 |
140 |
- |
85 |
- |
3 |
- |
|
20 |
¾ |
117 |
130 |
19 |
98 |
70 |
43 |
11 .5 |
1 .6 |
4 -15 |
140 |
- |
90 |
- |
4 |
- |
|
|
25 |
1 |
127 |
140 |
25 |
108 |
79.5 |
51 |
11 .5 |
1 .6 |
4 -15 |
150 |
- |
99 |
- |
5 |
- |
|
|
32 |
1¼ |
140 |
153 |
32 |
117 |
89 |
64 |
13 |
1 .6 |
4 -15 |
180 |
- |
105 |
- |
7 |
- |
|
|
40 |
1½ |
165 |
178 |
38 |
127 |
98.5 |
73 |
14 .5 |
1 .6 |
4 -15 |
200 |
- |
126 |
- |
8 |
- |
|
|
50 |
2 |
178 |
191 |
51 |
152 |
120.5 |
92 |
16 |
1 .6 |
4 -19 |
250 |
- |
140 |
- |
12 |
- |
|
|
65 |
2½ |
190 |
203 |
64 |
178 |
139.5 |
105 |
17 .5 |
1 .6 |
4 -19 |
300 |
- |
165 |
- |
18 |
- |
|
|
80 |
3 |
203 |
216 |
76 |
190 |
152.5 |
127 |
19 .5 |
1 .6 |
4 -19 |
350 |
- |
178 |
- |
24 |
- |
|
|
100 |
4 |
229 |
242 |
102 |
229 |
190.5 |
157 |
24 |
1 .6 |
8 -19 |
500 |
305 |
230 |
380 |
38 |
53 |
|
|
125 |
5 |
356 |
369 |
127 |
254 |
216 |
186 |
24 |
1 .6 |
8 -22 |
800 |
305 |
280 |
405 |
60 |
79 |
|
|
150 |
6 |
394 |
407 |
152 |
279 |
241.5 |
216 |
25 .5 |
1 .6 |
8 -22 |
800 |
305 |
310 |
460 |
82 |
102 |
|
|
200 |
8 |
457 |
470 |
203 |
343 |
298.5 |
270 |
29 |
1 .6 |
8 -22 |
1000 |
305 |
350 |
550 |
145 |
185 |
|
|
250 |
10 |
533 |
546 |
254 |
406 |
362 |
324 |
31 |
1 .6 |
12 -25 |
- |
400 |
- |
706 |
- |
280 |
|
|
Class 300 |
15 |
½ |
140 |
151 |
14 |
95 |
66 .5 |
35 |
14 .5 |
1 .6 |
4 -15 |
140 |
- |
85 |
- |
3 |
- |
|
20 |
¾ |
152 |
165 |
19 |
117 |
82 .5 |
43 |
16 |
1 .6 |
4 -19 |
140 |
- |
90 |
- |
5 |
- |
|
|
25 |
1 |
165 |
178 |
25 |
124 |
89 |
51 |
17 .5 |
1 .6 |
4 -19 |
150 |
- |
99 |
- |
6 |
- |
|
|
32 |
1¼ |
178 |
191 |
32 |
133 |
98 .5 |
64 |
19 .5 |
1 .6 |
4 -19 |
180 |
- |
105 |
- |
8 |
- |
|
|
40 |
1½ |
190 |
203 |
38 |
156 |
114 .5 |
73 |
21 |
1 .6 |
4 -22 |
200 |
- |
126 |
- |
11 |
- |
|
|
50 |
2 |
216 |
232 |
51 |
165 |
127 |
92 |
22 .5 |
1 .6 |
8 -19 |
250 |
- |
142 |
- |
16 |
- |
|
|
65 |
2½ |
241 |
257 |
64 |
190 |
149 |
105 |
25 .5 |
1 .6 |
8 -22 |
300 |
- |
165 |
- |
24 |
- |
|
|
80 |
3 |
283 |
299 |
76 |
210 |
168 .5 |
127 |
29 |
1 .6 |
8 -22 |
350 |
- |
178 |
3 30 |
34 |
52 |
|
|
100 |
4 |
305 |
321 |
102 |
254 |
200 |
157 |
32 |
1 .6 |
8 -22 |
500 |
305 |
230 |
3 80 |
56 |
76 |
|
|
125 |
5 |
381 |
397 |
127 |
279 |
235 |
186 |
35 |
1 .6 |
8 -22 |
800 |
305 |
280 |
4 20 |
86 |
124 |
|
|
150 |
6 |
403 |
419 |
152 |
318 |
270 |
216 |
37 |
1 .6 |
12 -22 |
800 |
305 |
310 |
4 80 |
125 |
163 |
|
|
200 |
8 |
502 |
518 |
203 |
381 |
330 |
270 |
41 .5 |
1 .6 |
12 -25 |
1000 |
305 |
350 |
5 60 |
222 |
267 |
|
|
Class 600 |
15 |
½ |
165 |
164 |
14 |
95 |
66 .5 |
35 |
14 .5 |
6 .4 |
4 -15 |
140 |
- |
79 |
- |
5 |
- |
|
20 |
¾ |
190 |
190 |
19 |
118 |
82 .5 |
43 |
16 |
6 .4 |
4 -19 |
140 |
- |
83 |
- |
7 |
- |
|
|
25 |
1 |
216 |
216 |
25 |
124 |
89 |
51 |
17 .5 |
6 .4 |
4 -19 |
200 |
- |
114 |
- |
9 |
- |
|
|
32 |
1¼ |
229 |
229 |
32 |
133 |
98 .5 |
64 |
21 |
6 .4 |
4 -19 |
200 |
- |
120 |
- |
13 |
- |
|
|
40 |
1½ |
241 |
241 |
38 |
156 |
114 .5 |
73 |
22 .5 |
6 .4 |
4 -22 |
250 |
- |
125 |
- |
17 |
- |
|
|
50 |
2 |
292 |
295 |
51 |
165 |
127 |
92 |
25 .5 |
6 .4 |
8 -19 |
300 |
- |
156 |
- |
25 |
- |
|
|
65 |
2½ |
330 |
333 |
64 |
190 |
149 |
105 |
29 |
6 .4 |
8 -22 |
350 |
- |
172 |
- |
42 |
- |
|
|
80 |
3 |
356 |
359 |
76 |
210 |
168 |
127 |
32 |
6 .4 |
8 -22 |
500 |
305 |
220 |
370 |
56 |
76 |
|
|
100 |
4 |
432 |
435 |
102 |
273 |
216 |
157 |
38 .5 |
6 .4 |
8 -25 |
650 |
305 |
250 |
400 |
85 |
1 23 |
|
|
Class 900 |
15 |
½ |
216 |
216 |
14 |
121 |
82 .5 |
35 |
22.5 |
6 .4 |
4-23 |
150 |
- |
98 |
- |
9 |
- |
|
20 |
¾ |
229 |
229 |
20 |
130 |
88 .9 |
43 |
25.5 |
6 .4 |
4-23 |
150 |
- |
105 |
- |
13 |
- |
|
|
25 |
1 |
254 |
254 |
25 |
149 |
101 .6 |
51 |
29 |
6 .4 |
4-26 |
200 |
- |
110 |
- |
16 |
- |
|
|
32 |
1¼ |
279 |
279 |
32 |
159 |
111 .1 |
64 |
29 |
6 .4 |
4-26 |
250 |
- |
120 |
- |
24 |
- |
|
|
40 |
1½ |
305 |
305 |
38 |
178 |
123 .8 |
73 |
32 |
6 .4 |
4-29 |
250 |
- |
125 |
- |
31 |
- |
|
|
50 |
2 |
368 |
371 |
50 |
216 |
1 65 .1 |
92 |
38.5 |
6 .4 |
8-26 |
350 |
- |
160 |
- |
45 |
- |
|
|
Class1500 |
15 |
½ |
216 |
216 |
14 |
121 |
82 .5 |
35 |
22.5 |
6 .4 |
4-23 |
182 |
- |
98 |
- |
10 |
- |
|
20 |
¾ |
229 |
229 |
20 |
130 |
88 .9 |
43 |
25.5 |
6 .4 |
4-23 |
200 |
- |
105 |
- |
14 |
- |
|
|
25 |
1 |
254 |
254 |
25 |
149 |
101 .6 |
51 |
29 |
6 .4 |
4-26 |
250 |
- |
110 |
- |
17 |
- |
|
|
32 |
1¼ |
279 |
279 |
32 |
159 |
111 .1 |
64 |
29 |
6 .4 |
4-26 |
300 |
- |
120 |
- |
25 |
- |
|
|
40 |
1½ |
305 |
305 |
38 |
178 |
123 .8 |
73 |
32 |
6 .4 |
4-29 |
350 |
- |
130 |
- |
33 |
- |
|
|
50 |
2 |
368 |
371 |
50 |
216 |
165 .1 |
92 |
38 .5 |
6 .4 |
8-26 |
500 |
- |
160 |
- |
48 |
- |
|